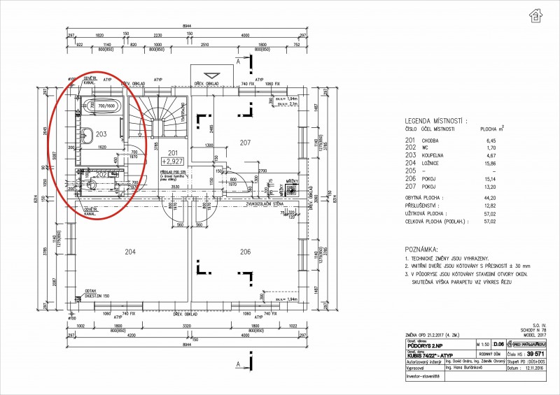
Dispoziční řešení koupelny v domě Kubis 74
Vybrali jste si jako váš budoucí domov náš Kubis 74? Mohly by se vám hodit varianty koupelen, které najdete v našem webovém katalogu u Kubisu 74 v sekci varianty domu.
Vybrali jste si jako váš budoucí domov náš Kubis 74? Mohly by se vám hodit varianty koupelen, které najdete v našem webovém katalogu u Kubisu 74 v sekci varianty domu.