Bungalov 72 S
Malý bungalov Bungalov 72 S se stane ideálním bydlením pro pár nebo menší rodinu. Výhodou této nízkopodlažní dřevostavby je její jednoduchý tvar a zastavěná plocha necelých 90 m2, díky které se hodí na jakýkoliv pozemek. Bungalov Bungalov 72 S má tradiční sedlovou střechu se sklonem 25°.
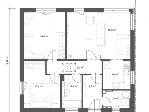
Půdorys nízkopodlažního domu Bungalov 72 S Vás potěší svou jednoduchostí. Rozměry 9,9 × 9 m a sedlová střecha činí z tohoto domu ideálního kandidáta do jakékoliv zástavby. Srdcem domu je obývací pokoj spojený s jídelnou s přímým vstupem do kuchyně. Tento prostor je díky několika velkým oknům prosvětlený a vzdušný. Zároveň poskytuje přímé spojení s venkovní terasou a zahradou. Mysleli jsme i na praktickou technickou místnost.
Dodávka vybavení na klíč obsahuje:
- valbová střecha se sklonem 25°
- v ceně domu základová deska a doprava
- tepelné čerpadlo vzduch/vzduch s možností vytápění nebo chlazení interiérovými splitovými klimatizačními jednotkami
- elektrické nástěnné přímotopné panely bez centrální regulace
- třífázový fotovoltaický systém o výkonu cca 2,7 kWp s hybridním střídačem
- obvodové stěny s vnitřní izolací 120 + 40 mm a vnější termofasádou 150 mm uzavřenou strukturní barevnou omítkou
- betonová střešní krytina včetně anténní tašky
- vnější dřevěné díly natřené lazurovou barvou dle vzorníku
- okapy z titanozinku
- venkovní nezámrzný zahradní ventil
- zateplený poklop se schůdky na pochozí půdu
- laminátová podlaha nebo koberec v obytných místnostech, v ostatních místnostech dlažba
- obklady v koupelně a na WC do výše dveří
- elektroinstalace od skříně domovního rozvaděče včetně dodávky domovního rozvaděče, v místnostech jsou zabudovány zásuvky a vypínače bílé barvy
- ventilátor s hygrostatem v místnostech s vanou nebo sprchou
- instalace slaboproudu - zvonek od domovních dveří, zásuvka pro kabelové připojení TV včetně kabelového rozvodu v domě
- sanitární vybavení - umyvadlo ze sanitární keramiky v bílé barvě se směšovací pákovou baterií, umývátko ze sanitární keramiky v bílé barvě se směšovací pákovou baterií, vana s pákovou baterií a se sprchovou hadicí a růžicí a kombinované WC
- přípojka pro pračku
- přípojka pro myčku
- ohřev teplé vody pomoci zásobníku 200 l
- malířské práce - stěny a stropy upraveny zednickou stěrkou stupně kvality povrchu Q2, bílá malba
- kuchyňské přípojky vody, odpady a elektro v rozsahu dle typové obchodní dokumentace
- rozvody vody potrubí Alpex, kanalizace z plastových trubek
- požární bezpečnost - zařízení autonomní detekce a signalizace
- okna a terasové dveře vyrobené ze 7-mi komorových PVC profilů v bílé barvě s izolačním trojsklem, součinitel prostupu tepla celého okna Uw ≤ 1,0 W/(m².K)
- vnitřní dýhované dveře v provedení plné s obložkovou zárubní a protihlukovým průběžným gumovým těsněním
- dveřní kování dvoudílné rozetové
- vchodové domovní dveře v provedení masiv nebo z 5-ti komorových PVC profilů v bílé barvě se třemi závěsy a pětinásobným uzávěrem
Parametry domu:
| Podlahová plocha přízemí | 72,59 m2 | 
| Zastavěná plocha | 89,63 m2 | 
| Sklon střechy | 25 ° | 
| Rozměry domu | 9,9 × 9,0 m | 
 
		                     
                                     
                                     
                                     
                                     
                                     
                                     
                                     
                                    


 
                 
        