Family 131
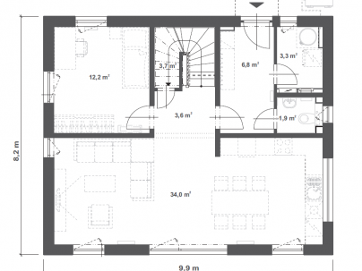
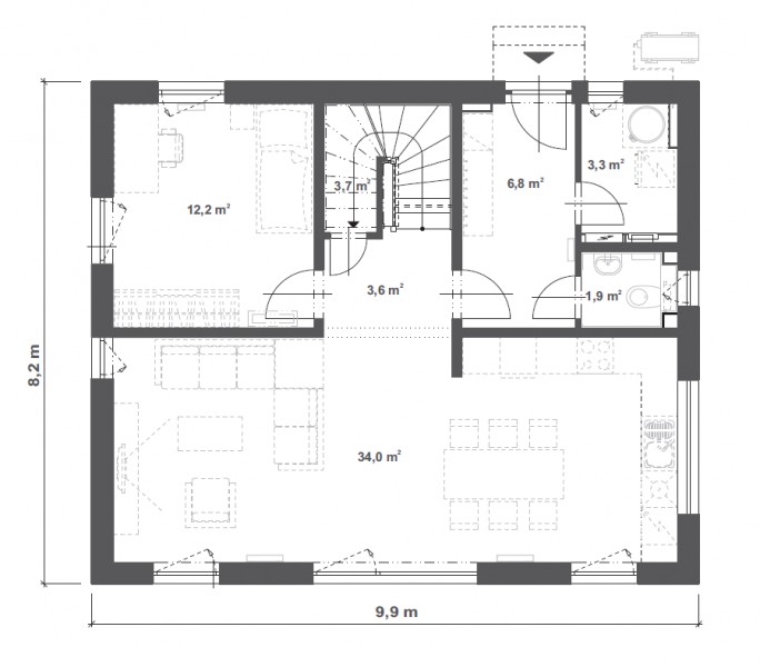
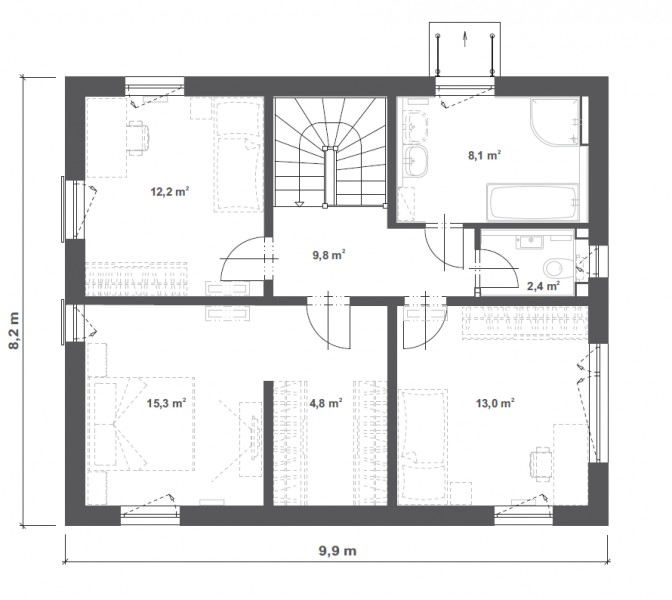
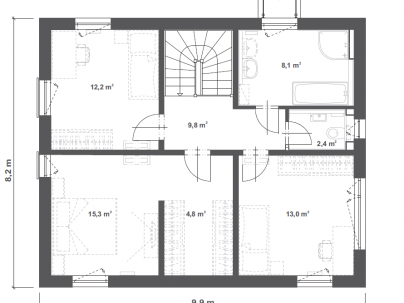
Oblíbená dispozice domu orientovaného celou obytnou částí do zahrady. Plnohodnotný pokoj v přízemí vhodný pro ložnici rodičů a tři prostorné a dobře prosvětlené pokoje v patře činí tento dům oblíbeným pro mladou rozrůstající se rodinu. Architektura domu je vhodná do města i na venkov.
| Provedení domu | 5+kk |
| Užitná plocha | 131 m2 |
| Zastavěná plocha | 82 m2 |
| Rozměry domu | 8.2 x 9.9 m |
Více inspirace na dispoziční řešení domu najdete u domu Family 135 (který je o 1 modul = 60cm delší).