Family 142
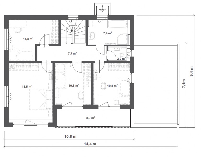
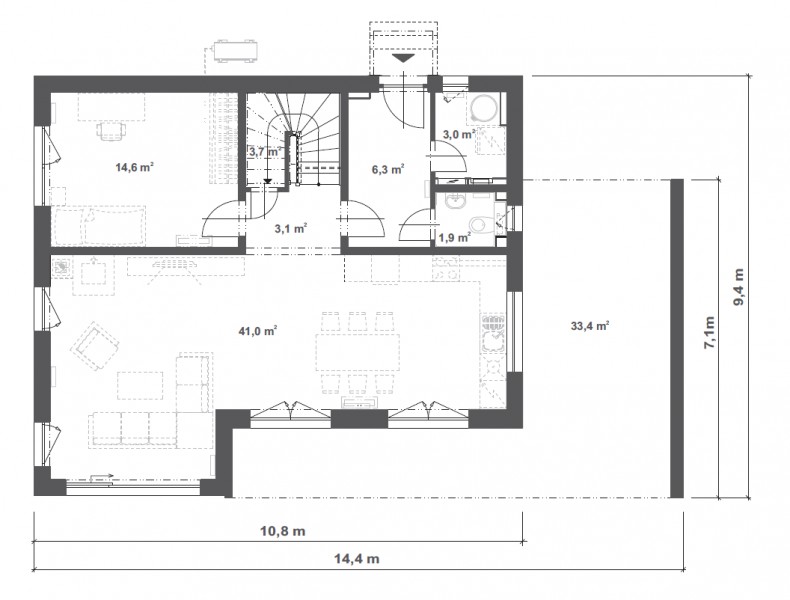
Pokud máte rádi moderní otevřené prostory a dostatečně velký vstup do domu, FAMILY 142 vám udělá radost. Přízemí s výhledem do zahrady a na terasu, velkou kuchyní, jídelnou a prostorným prosvětleným obývacím pokojem vám poskytne dostatek prostoru. Ložnice v patře s vlastní šatnou je díky velikosti a prosvětlení příjemné místo k odpočinku.
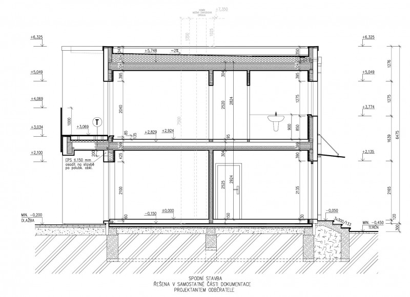
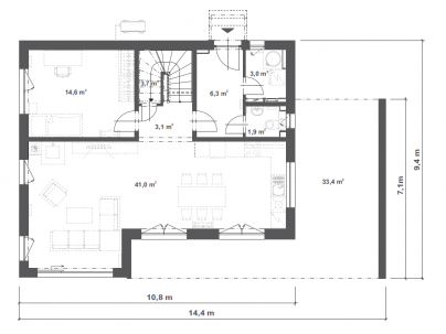
| Provedení domu | 5+1 |
| Užitná plocha | 142 m2 |
| Zastavěná plocha | 127 m2 |
| Rozměry domu | 10.8 x 9.4 m |